Skip to content
Home
About
Portfolio
Residential
Concepts
Commercial
Masterplans
Industrial
Competiotion
Blog
Contact
Home
About
Portfolio
Residential
Concepts
Commercial
Masterplans
Industrial
Competiotion
Blog
Contact
Home
About
Portfolio
Residential
Concepts
Commercial
Masterplans
Industrial
Competiotion
Blog
Contact
Home
About
Portfolio
Residential
Concepts
Commercial
Masterplans
Industrial
Competiotion
Blog
Contact
Linkedin-in
Instagram
Portfolio
Portfolio
Portfolio
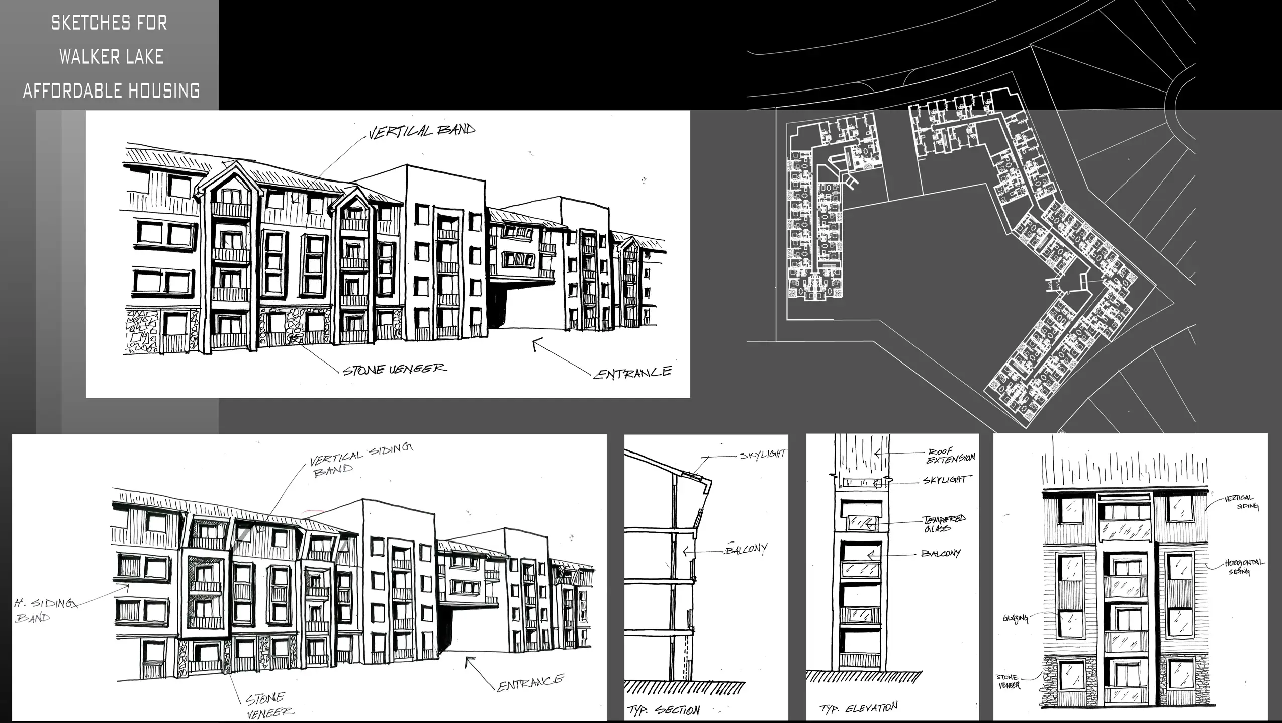
Walker Lake Affordable Housing
Date:
Services:
Development Permit, Building Permit
Location:
Alberta
Collaboration:
Project Concept and Story
Projects
Featured Works
Residential
5 Plex Housing – Vancouver
Concepts
Modular Residence #2
Industrial
Cold Storage Warehouse
Commercial
,
Concepts
,
Masterplans
,
Residential
Wheatland County, Alberta